Haus-Konfigurator

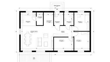
Das Projekt ERDOL 3 XL Haus mit einer Fläche von 97 m² (151 m² in der Version mit nutzbarem Dachboden) ist ein Projekt für Menschen, die mehr komfortablen Platz im Alltag haben wollen. Das Haus in dieser Version ist ein erweitertes ERDOL 3, dank dem es möglich war, die Fläche des Wohnzimmers zu vergrößern und eine separate Treppe (bei der Version mit nutzbarem Dachboden) oder einen zusätzlichen Hauswirtschaftsraum (bei der Version ohne nutzbaren Dachboden) einzurichten. Wenn Sie mehr Raum wünschen, ist dieses Projekt ideal für Sie. Die modernen Technologien und ökologischen
Lösungen, die hier zum Einsatz kommen, machen es zu einem energieeffizienten Haus, das im Einklang mit der Natur funktioniert. Für den Bau wird KVH-Holz verwendet, das die Grundlage der gesamten Struktur bildet. Entsprechend ausgewählte Dämmstoffe sorgen dafür, dass das Haus vor Wärmeverlusten geschützt ist. 

ERDOL 3 XL in der gewählten Konfiguration hat ein Satteldach ohne nutzbares Dachgeschoss mit einer Neigung von 25 Grad und ist mit EUROCOLOR SYNEGO PVC-Tischlerarbeiten auf einem 80 mm breiten Profil der Marke REHAU in den Farben Weiß ausgestattet.

Was die ausgewählte Konfiguration enthält
Die ausgewählte Konfiguration beinhaltet
  1. Projektplanung, Hauspläne
  2. Vorgefertigte Außenwände mit vorbereiteten Behältern für die Elektroinstallation, Polystyrol-Isolierung, Netz und Kleber
  3. Vorgefertigte Innenwände im Erdgeschoss mit vorbereiteten Schächten für die Elektroinstallation
  4. Dachstuhlkonstruktion - ohne Decke und Dachabschluss/Dämmung und ohne Material für diese Arbeiten
  5. Dacheindeckung - Betonziegel, Farbe anthrazit
  6. Galeco-2-Fallrohre
  7. Montage von vorgefertigten Wand- und Dachelementen
  8. 3-fach verglaste Fensterelemente inkl. Montage, Farbgebung entsprechend der im Konfigurator gewählten Option
  9. Eingangstüren einschließlich Einbau. Farbgebung entsprechend der im Konfigurator gewählten Option
  10. Dacheindeckungen mit Dachrinnen und Fallrohre
Leistungen des Bauherrns
  1. Anpassung des Projekts an das Grundstück und die Energieleistung des Gebäudes
  2. Koordination Ihrer Baugenehmigung mit Partner-Architekten
  3. Einstellung oder Übernahme der Funktion eines Bauleiters und Einrichtung eines Bautagebuchs
  4. Vorbereitung der Fundamentplatte in Übereinstimmung mit dem Projekt und den Richtlinien des Bauunternehmens
  5. Elektrische Installation
  6. Klempnerarbeiten
  7. Belüftungssystem
  8. Ausgießer
  9. Wärmepumpe als Heizungsanlage (namenhafte EU-Hersteller)
  10. Schließen/Dämmen der Decke
  11. Dachabschluss/Dämmung
  12. Ausbau und Gestaltung des Dachbodens, d. h. Errichtung der Dachbodenbelüftung, des Fußbodens, der Trennwände, der Decken und der Dachschrägen, Installation der Elektro- und Sanitäranlagen
  13. Verputzen, Spachteln und Schleifen von Wänden und Decken
  14. Fertigstellung - Anstrich der Wände, weiße Farbe
  15. Endgültiges Rendering der Fassade
  16. Äußere Verbindungen
  17. Gebäudeerdung (falls erforderlich)

Den Kunden, die sich für den Kauf von ERDOL HAUS entscheiden, wird auch Hilfe bei der Vorbereitung der Fundamentplatte angeboten. Dies ist ein sehr wichtiger Teil der Konstruktion, da es sich um das Fundament handelt, auf dem das gesamte Gebäude errichtet wird, weshalb auf eine ordnungsgemäße Ausführung geachtet werden sollte. Die Platte ist eine Alternative zu den traditionellen Fundamenten. und ihre Hauptvorteile sind definitiv die kürzere Ausführungszeit und die Wärmedämmung. Durch die Verwendung der Fundamentplatte beschleunigt sich auch die nachfolgenden Bauphasen - sie ermöglicht es, die Bauzeit um einige Wochen zu verkürzen.

ERDOL HAUS Hausvergleich
(Zum Vergrößern anklicken)
Siehe Konstruktion am Beispiel von ERDOL 3 XL
Wie der Bauprozess funktioniert?
Vertrag
  • Bereitstellung der erforderlichen Unterlagen für einen Bauvertrag, d.h. Erschließungsbedingungen (WZ) oder örtlicher Entwicklungsplan (LEP).
  • Unterschreiben Sie den Vertrag und erhalten Sie bis zu 7 Monate Preisgarantie für den Hausbau.
  • Zahlen Sie die Kaution gemäß dem Vertrag.
Formalitäten
2-5 Monate
  • Erhalt der Entwurfsunterlagen (wir stellen Ihnen alle erforderlichen Entwürfe bis zu 45 Tage nach Vertragsabschluss und Zahlung der Anzahlung zur Verfügung).
  • Führen Sie eine Anpassung durch, d.h. lassen Sie den Entwurf des Hauses von einem entsprechend qualifizierten Fachmann auf das Grundstück übertragen.
  • Beantragen Sie eine Baugenehmigung oder erklären Sie den Bau im Falle eines "Hauses auf Antrag".
Bereitschaft
  • Schicken Sie uns eine Kopie der Baugenehmigung oder der Bauanzeige und teilen Sie uns mit, dass Sie bereit sind, mit den Arbeiten zu beginnen.
  • Bestätigen Sie Ihre finanzielle Bereitschaft zum Baubeginn.

* Sobald die oben genannten Punkte erfüllt sind, wird ein Zeitplan für den Bau festgelegt.

Bauzeit
2-4 Monate
  • Fundamentplatte – Zahlung für die Fertigstellung, sobald sie für fertig erklärt wird.

* Die Fertigstellung wird mindestens 3-4 Wochen vor der Installation des Gebäudes erfolgen.

  • Montage der Konstruktion in einem geschlossenen Zustand. Machen Sie die Zahlung und bis zu 10 Tage nach Abschluss der Arbeiten an der Fundamentplatte.

* Es wird uns etwa 3-7 Tage dauern, um das G

Fertigstellung
1-3 Monate
  • Interne Installationen: Elektrik, Sanitäranlagen, Heizung, mechanische Lüftung (Rekuperation).
  • Bauträgerzustand und Trockenbau.

* Der detaillierte Zeitplan für die Fertigstellung des Hauses muss je nach dem endgültigen Umfang der Arbeiten noch individuell vereinbart werden.

Beendigung der Bauarbeiten
  • Übergabe der As-Built-Dokumentation.
Erkunden Sie die Innenräume der Fertighäuser

Damit Sie sich das Projekt ERDOL HAUS genauer ansehen können, haben wir uns entschlossen, sein Aussehen zu visualisieren und haben für Sie einen virtuellen Rundgang vorbereitet, dank dessen Sie den Grundriss des Hauses und die Anordnung der einzelnen Räume kennenlernen können. Wir hoffen, dass diese Visualisierung unserer Designer für Sie eine hilfreiche Inspiration in der Phase der Fertigstellung des Gebäudes sein wird und Sie sich vorstellen können, wie schön das Leben in Ihrem eigenen Haus sein kann.

Spacer 3D
Laden...