Haus-Konfigurator

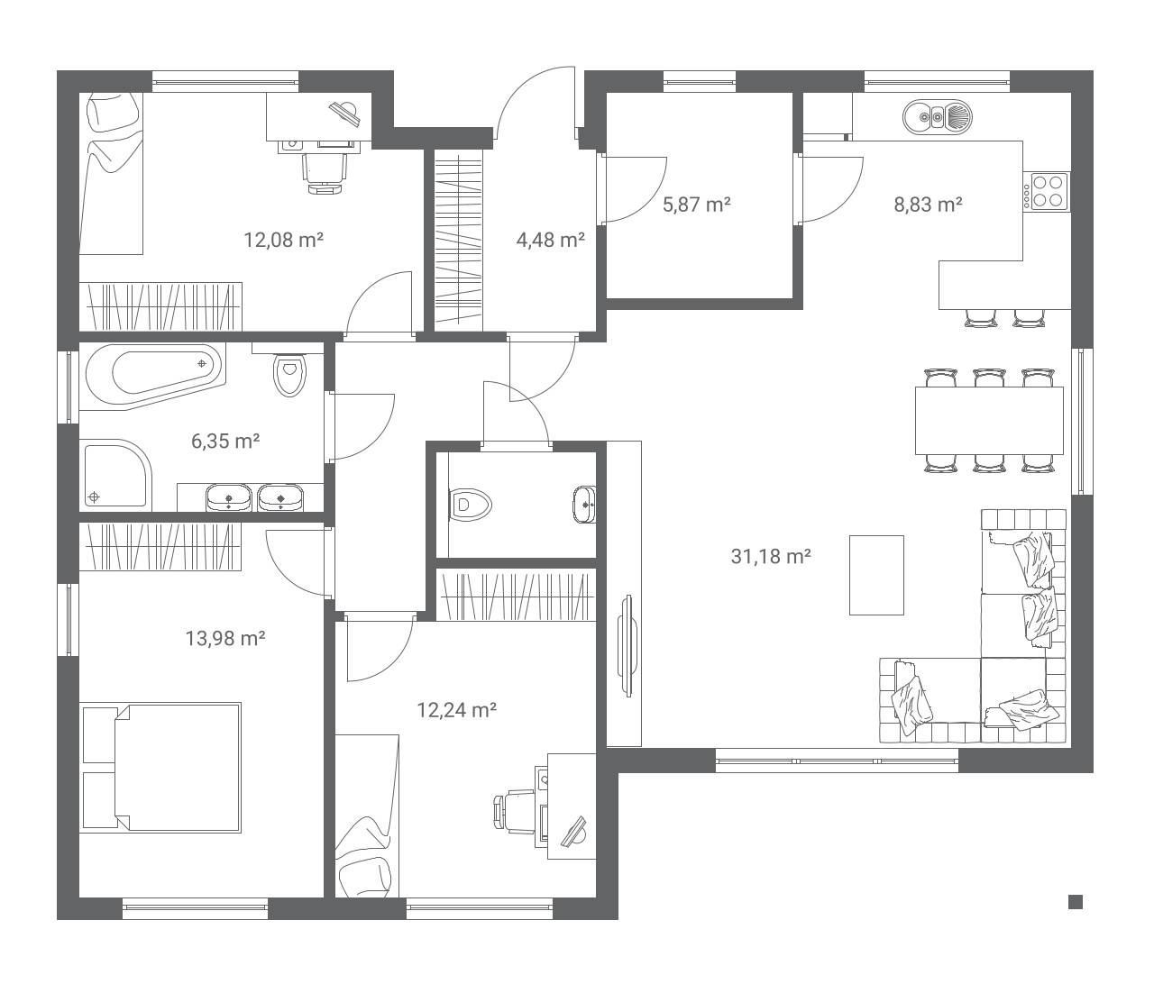
ERDOL 104, wie der Name schon sagt, hat 104 m² (plus 25 m² Dachboden) Wohnfläche. Es ist eine gute Wahl für Menschen, die ein kleines, aber sehr funktionelles Haus in einer optisch attraktiven Form mit einem eleganten Walmdach suchen. Für den alltäglichen Komfort sorgen u.a. 2 Bäder und eine Terrasse mit einem Laubengang am Eingang, dank dem man bei jedem Wetter gerne nach draußen geht. Neben dem Komfort ist das Haus auch ökologisch - die Instandhaltungskosten wurden durch den Einsatz moderner Lösungen und Materialien, die die Innenräume wirksam vor Wärmeverlusten schützen, auf ein Minimum reduziert.

ERDOL 104 in der gewählten Konfiguration hat ein Walmdach ohne nutzbaren Dachboden mit einer Neigung von 30 Grad und ist mit EUROCOLOR SYNEGO PVC-Tischlerarbeiten auf einem 80 mm breiten Profil der Marke REHAU in den Farben Weiß ausgestattet.

Konfigurieren Sie Ihr gewähltes Erdol HAUS
Dachgeschoss Walmdach ohne ausgebautem Dachboden - Dachneigung 30 Grad
Dachziegel Braas Celtic Lumino
Terrassenfenster Drehkipp + FIX
Fassade Styropor, Netz, Kleber
Farbpaket -Fenster (Außenfarbe), Türen, Dachlüberstände Weiß
Sind Sie an unserem Angebot interessiert?
Brauchen Sie Hilfe oder einen Rat?
Was die ausgewählte Konfiguration enthält
Die ausgewählte Konfiguration beinhaltet
  1. Projektplanung, Hauspläne
  2. Vorgefertigte Außenwände mit vorbereiteten Steckdosen für die Elektroinstallation, Polystyrol-Isolierung, Netz und Kleber
  3. Vorgefertigte Innenwände im Erdgeschoss mit vorbereiteten Schächten für die Elektroinstallation
  4. Vollständige Dachkonstruktion, Zwischendecke ohne Dämmstoff
  5. Dacheindeckung - BRAAS-Betondachziegel je nach gewählter Konfiguration
  6. Galeco-Dachrinnen
  7. Montage von vorgefertigten Wand- und Dachelementen
  8. 3-fach verglaste Fensterelemente inkl. Montage, Farbgebung entsprechend der im Konfigurator gewählten Option
  9. Eingangstüren einschließlich Einbau
  10. Dacheindeckungen mit Dachrinnen und Fallrohre
Leistungen des Bauherrns
  1. Anpassung des Projekts an das Grundstück
  2. Koordination Ihrer Baugenehmigung mit Partner-Architekten
  3. Übernahme der Bauleiterfunktion, Führung von einem Bautagebuch, etc.
  4. Vorbereitung der Fundamentplatte in Übereinstimmung mit dem Projekt und den Richtlinien des Bauunternehmens
  5. Elektrische Installation
  6. Klempnerarbeiten
  7. Zentrale Lüftungssystem (namenhafte EU-Hersteller)
  8. Estrich
  9. Wärmepumpe als Heizungsanlage (namenhafte EU-Hersteller)
  10. Schließen/Dämmen der Decke
  11. Dämmen der Zwischendecke
  12. Verputzen, Spachteln und Schleifen von Wänden und Decken
  13. Fertigstellung - Anstrich der Wände, weiße Farbe
  14. Endgültiges Rendering der Fassade
  15. Äußere Verbindungen
  16. Gebäudeerdung (falls erforderlich)

Den Kunden, die sich für den Kauf von ERDOL HAUS entscheiden, wird auch Hilfe bei der Vorbereitung der Fundamentplatte angeboten. Dies ist ein sehr wichtiger Teil der Konstruktion, da es sich um das Fundament handelt, auf dem das gesamte Gebäude errichtet wird, weshalb auf eine ordnungsgemäße Ausführung geachtet werden sollte. Die Platte ist eine Alternative zu den traditionellen Fundamenten. und ihre Hauptvorteile sind definitiv die kürzere Ausführungszeit und die Wärmedämmung. Durch die Verwendung der Fundamentplatte beschleunigt sich auch die nachfolgenden Bauphasen - sie ermöglicht es, die Bauzeit um einige Wochen zu verkürzen.

ERDOL HAUS Hausvergleich
(Zum Vergrößern anklicken)
Siehe Konstruktion am Beispiel von ERDOL 104
Wie der Bauprozess funktioniert?
Vertrag
  • Bereitstellung der erforderlichen Unterlagen für einen Bauvertrag, d.h. Erschließungsbedingungen (WZ) oder örtlicher Entwicklungsplan (LEP).
  • Unterschreiben Sie den Vertrag und erhalten Sie bis zu 7 Monate Preisgarantie für den Hausbau.
  • Zahlen Sie die Kaution gemäß dem Vertrag.
Formalitäten
2-5 Monate
  • Erhalt der Entwurfsunterlagen (wir stellen Ihnen alle erforderlichen Entwürfe bis zu 45 Tage nach Vertragsabschluss und Zahlung der Anzahlung zur Verfügung).
  • Führen Sie eine Anpassung durch, d.h. lassen Sie den Entwurf des Hauses von einem entsprechend qualifizierten Fachmann auf das Grundstück übertragen.
  • Beantragen Sie eine Baugenehmigung oder erklären Sie den Bau im Falle eines "Hauses auf Antrag".
Bereitschaft
  • Schicken Sie uns eine Kopie der Baugenehmigung oder der Bauanzeige und teilen Sie uns mit, dass Sie bereit sind, mit den Arbeiten zu beginnen.
  • Bestätigen Sie Ihre finanzielle Bereitschaft zum Baubeginn.

* Sobald die oben genannten Punkte erfüllt sind, wird ein Zeitplan für den Bau festgelegt.

Bauzeit
2-4 Monate
  • Fundamentplatte – Zahlung für die Fertigstellung, sobald sie für fertig erklärt wird.

* Die Fertigstellung wird mindestens 3-4 Wochen vor der Installation des Gebäudes erfolgen.

  • Montage der Konstruktion in einem geschlossenen Zustand. Machen Sie die Zahlung und bis zu 10 Tage nach Abschluss der Arbeiten an der Fundamentplatte.

* Es wird uns etwa 3-7 Tage dauern, um das G

Fertigstellung
1-3 Monate
  • Interne Installationen: Elektrik, Sanitäranlagen, Heizung, mechanische Lüftung (Rekuperation).
  • Bauträgerzustand und Trockenbau.

* Der detaillierte Zeitplan für die Fertigstellung des Hauses muss je nach dem endgültigen Umfang der Arbeiten noch individuell vereinbart werden.

Beendigung der Bauarbeiten
  • Übergabe der As-Built-Dokumentation.
Erkunden Sie die Innenräume der Fertighäuser

Damit Sie sich das Projekt ERDOL HAUS genauer ansehen können, haben wir uns entschlossen, sein Aussehen zu visualisieren und haben für Sie einen virtuellen Rundgang vorbereitet, dank dessen Sie den Grundriss des Hauses und die Anordnung der einzelnen Räume kennenlernen können. Wir hoffen, dass diese Visualisierung unserer Designer für Sie eine hilfreiche Inspiration in der Phase der Fertigstellung des Gebäudes sein wird und Sie sich vorstellen können, wie schön das Leben in Ihrem eigenen Haus sein kann.

Spacer 3D
Laden...